Tönisvorst:
Doppelhaushälfte in St. Tönis Baujahr 2006 mit Garage und Keller
Objekt-Nr.: KH260102-Le

Vorderansicht

Ansicht Garten

Küche EG

Blick von Essecke ins Wohnzimmer

Wohnzimmer

Badewanne und Dusche

Waschbecken

großes Zimmer Dachspitze

Blick zur Giebelwand Dachspitze

Flur im Keller

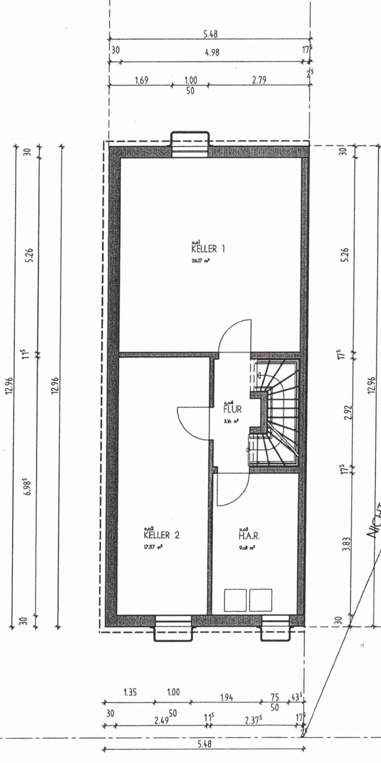
Keller

EG

OG

DG














Preis:
449.000 €
Wohnfläche ca.:
117,58 m²
Grundstück ca.:
263 m²
Zimmeranzahl:
4
Dieses sehr schöne, als verklinkerte und unterkellerte Doppelhaushälfte im Jahre 2006 am Rande eines jungen Wohngebietes gebaute Haus eignet sich besonders für Familien mit bis zu 2 Kindern. Es ist nicht nur rein optisch ein Hingucker, überzeugt aber noch mehr durch überdurchschnittliche Ausstattung, einen durchdachten Grundriss mit 4 großen Zimmern und einer attraktiven Lage.
Haustyp: Doppelhaushälfte
Etagenanzahl: 2
Provisionspflichtig: ja
Provision: 3,57%
Küche: Einbauküche
Bad: Dusche, Wanne, Fenster
Anzahl Schlafzimmer: 3
Anzahl Badezimmer: 1
Terrasse: 1
Gäste-WC: ja
Keller: voll unterkellert
Anzahl der Parkflächen: 1 x Garage
Qualität der Ausstattung: gehoben
Baujahr: 2006
Bauphase: Haus fertig gestellt
Verfügbar ab: nach Vereinbarung
Zustand: unrenoviert
Energieklasse: D
Heizung: Fußboden, Zentralheizung
Befeuerungsart: Gas
Energietyp: Niedrigenergie
Energieausweistyp: Bedarfsausweis - gültig vom 28.02.2026 bis 27.02.2036
Energieeffizienz-Klasse: D
Baujahr laut Energieausweis: 2006
Bei Abschluss eines Kaufvertrages wird eine Vermittlungs-/ Nachweisprovision in Höhe von 3,57 % inklusive 19 % Mehrwertsteuer auf den Kaufpreis vom Käufer fällig.
Die von uns gemachten Informationen beruhen auf Angaben des Verkäufers bzw. der Verkäuferin. Für die Richtigkeit und Vollständigkeit der Angaben kann keine Gewähr bzw. Haftung übernommen werden. Ein Zwischenverkauf und Irrtümer sind vorbehalten.
Wir weisen auf unsere Allgemeinen Geschäftsbedingungen hin. Durch weitere Inanspruchnahme unserer Leistungen erklären Sie die Kenntnis und Ihr Einverständnis.
Das könnte Ihnen auch gefallen
Sie suchen ein Haus in Dyklage ? Hier können Sie sich vormerken lassen!






































