Krefeld:
in gefragter Dyklage! charmantes Reiheneckhaus ++ Traumküche mit herrlicher Aussicht in den Garten!
Objekt-Nr.: KH250903-Kr

Vorderansicht

Empore im 1 OG

Wohnzimmer

Kaminzimmer mit Kamin

Kamiin

Loggia

Loggia

toller Weitblick aus der Loggia

Küche

Essbereich

herrlicher Garten

Terrase

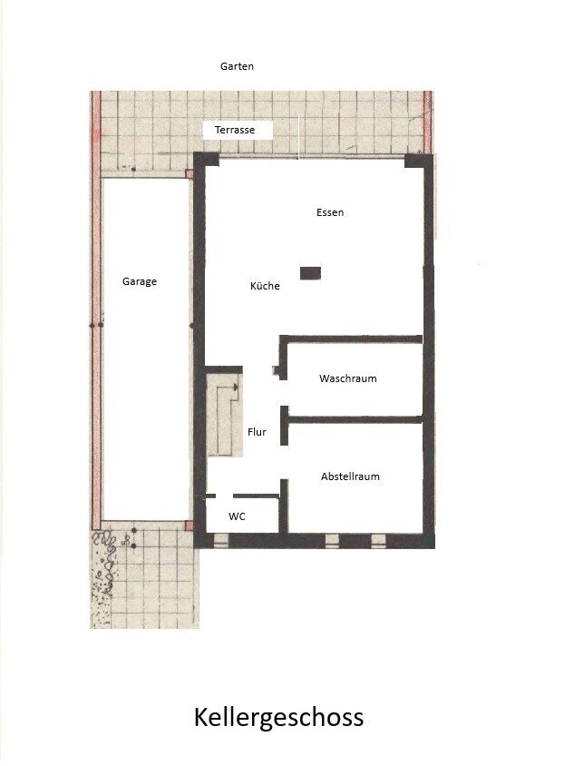
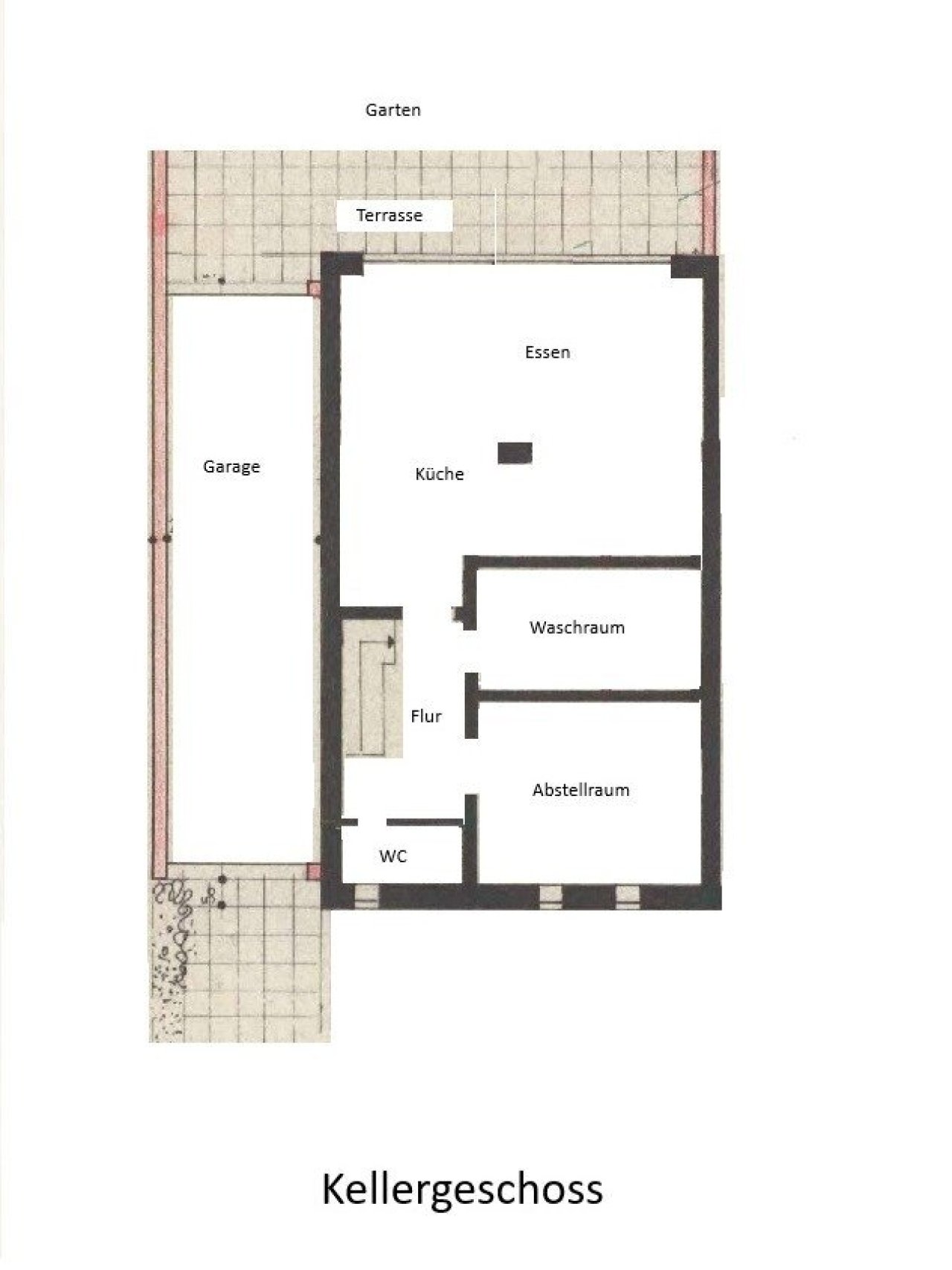
Grundriss UG

Grundriss EG

Grundriss OG















Preis:
485.000 €
Wohnfläche ca.:
160 m²
Grundstück ca.:
604 m²
Zimmeranzahl:
5
Auf einem herrlichen Grundstück in gefragter Lage von Krefeld Inrath wartet dieses charmante Haus auf neue Eigentümer. Das Haus wurde in den 1930er Jahren in massiver Bauweise auf einem 600 m² großen Grundstück errichtet. In den 1970er Jahren wurde es um einen rückwärtigen Anbau erweitert.
Im Erdgeschoss befinden sich die Diele, die Ankleide, das Wohn-/Esszimmer, ein Schlafzimmer, ein Eingangsbereich mit Treppenaufgang und ein WC. Im Obergeschoss befinden sich 3 weitere Schlafräume und ein WC. Eines der Schlafzimmer verfügt über eine Loggia mit herrlichem Ausblick. Im Untergeschoss sind die Waschküche, ein Abstellraum und als Highlight die riesige, lichtdurchflutete Küche mit Essbereich und Ausgang in den nach südosten ausgerichteten Garten untergebracht. Zum Haus gehört eine überlange 10 m Garage.
Haustyp: Reihenendhaus
Etagenanzahl: 2
Provisionspflichtig: ja
Provision: 3,57%
Küche: Einbauküche
Bad: Fenster, Bidet
Anzahl Schlafzimmer: 3
Anzahl Badezimmer: 2
Terrasse: 1
Loggia: 1
Gäste-WC: ja
Kamin: ja
Keller: voll unterkellert
Umgebung: Bus, Einkaufsmöglichkeit, Fitness
Anzahl der Parkflächen: 1 x Garage
Möbliert: nein
Ausblick: Fernblick
Letzte Modernisierung/ Sanierung: 2004
Qualität der Ausstattung: normal
Baujahr: 1933
Verfügbar ab: nach Vereinbarung
Bodenbelag: Fliesen, Parkett
Zustand: renovierungsbedürftig
Heizung: Zentralheizung, Radiatoren
Energieausweistyp: Bedarfsausweis - gültig vom 30.09.2025 bis 29.09.2035
Energieeffizienz-Klasse: F
Baujahr laut Energieausweis: 1933
Bei Abschluss eines Kaufvertrages wird eine Vermittlungs-/ Nachweisprovision in Höhe von 3,57 % inklusive 19 % Mehrwertsteuer auf den Kaufpreis vom Käufer fällig.
Die von uns gemachten Informationen beruhen auf Angaben des Verkäufers bzw. der Verkäuferin. Für die Richtigkeit und Vollständigkeit der Angaben kann keine Gewähr bzw. Haftung übernommen werden. Ein Zwischenverkauf und Irrtümer sind vorbehalten.
Wir weisen auf unsere Allgemeinen Geschäftsbedingungen hin. Durch weitere Inanspruchnahme unserer Leistungen erklären Sie die Kenntnis und Ihr Einverständnis.
Das könnte Ihnen auch gefallen
Sie suchen ein Haus in Dyklage ? Hier können Sie sich vormerken lassen!

Roberts Immobilien
Herr Robert Jan Stankiewicz
Blumentalstraße124
47798 Krefeld
Büro: +49 2151 3276530
Mobil: +49 172 7211407
Fax: +49 2151 3276531
